当社の主力マシン無水式土壌・地下水調査機「エコプローブ」で全国どこへでもお伺い致します。
エコプローブの特徴
- 微弱振動への選択をする事で、軟弱地盤の高精度サンプリングを実現
- 低速回転と高速・静音バイブロの組み合わせによる豊富な掘削バリエーションが選択出来ます
- 打撃式に比べて格段に静かで、回転式より圧倒的に早いサンプリングが可能となりました
- 無水の高速サンプリングが試料の発熱を抑え、その品質を保証します
- 二重管工法の採用でサンプリングと井戸仕上げが同時可能となりました
- スイッチ式によるオペレーションで安全で確実な作業が可能です
- 油圧作動油には、万一の事故に備え、生分解性植物油を採用しています





エコプローブ(EP-26)
騒音振動測定記録
| 測定位置 | 堀削長(m) | 1m | 3m | 5m | 10m | 15m |
|---|---|---|---|---|---|---|
| 測定位置 | 暗騒音=47.0db | |||||
| バイブロ運転:Hi 4000rpm(エンジン定格運転) | ||||||
| 側面・左 | 0.0〜1.4 | 92.0 | 88.0 | 83.0 | 78.8 | 75.0 |
| 側面・右 | 0.0〜1.4 | 92.0 | 87.0 | 82.0 | 77.5 | 75.0 |
| 前方 | 0.0〜1.4 | 93.6 | 89.0 | 84.9 | 78.7 | 74.9 |
| 振動測定 | 暗振動=45.0db(測位位置:前方6.0m) | |||||
| バイブロ運転:Hi 4000rpm(エンジン定格運転) | ||||||
| 側面 | - | 83.0 | 82.0 | 78.0 | - | |
| 前方 | - | 86.0 | 59.0 | 62.0 | - | |
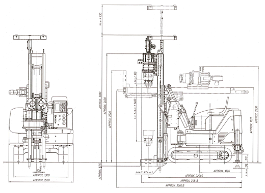
寸法・仕様

パワースイベル部
| 形式 | 油圧モータ駆動 |
|---|---|
| スピンドル回転数 | LOW 30[min-1] |
| IGH 60[min-1] | |
| スピンドルトルク | LOW 3.4[kNm](346.8kg-m) |
| LOW 1.7[kNm](173.4kg-m) |
フィード部
| 形式 | 油圧シリンダーフィード |
|---|---|
| 給圧力 | 20.5[kN](2100kg) |
| スピンドルトルク | 97.8[kN](9975kg) |
| 速度 | 0~11.1[m/min] |
| ストローク | 1.4[m] |
バイブロ部
| 最大振動数 | 4000[cpm] |
|---|---|
| 最大起振力 | 38[kN](3900kgf) |
マスト
| 形式 | 油圧シリンダ起倒式 |
|---|---|
| マストスライド | 500[mm] |
| ヘッドシープ | 手動スライド式、ストローク730[mm] |
ウインチ
| 巻き能力 | 3.9[kN](400kgf) |
|---|---|
| 巻き速度 | 0〜50[m/min] |
| ワイヤサイズ | 5[mm]×23[m] |
重量
| 総重量 | 2650[kg] |
|---|
クローラ
| 駆動方式 | 油圧駆動式 |
|---|---|
| 形式 | ZX27U2/17(日立建機) |
| エンジン | 26.8/2200[ps/rpm] |
